住宅会社

106

件

施工事例

696

件

イベント

14

件

土地・建売

37

件

heart
件
お気に入り

お気に入り

title
工務店・ハウスメーカー 工務店・ハウスメーカーを探す 施工事例 施工事例を見る 住宅イベント 住宅イベントに行く モデルハウス モデルハウスを見る リフォーム・リノベーション リフォーム・リノベーション事例を見る 土地・建売 土地・建売を探す 一括資料請求 一括資料請求
TOPへ戻る
工務店・ハウス
メーカーを探す
施工事例を
見る
住宅イベントに
行く
モデルハウスを
見る
リノベーション・
リフォーム事例を見る
土地・建売を
探す
  1. ひろしまの家
  2. モデルハウス一覧
  3. 株式会社トータテハウジング
  4. “集まる”と“こもれる”が両立する|広々LDKで家族がくつろぐ住まい I7-11

株式会社トータテハウジング

ring

広島市佐伯区

モデルハウス
見学予約する
Main Image
⟨
⟩
1/8

“集まる”と“こもれる”が両立する|広々LDKで家族がくつろぐ住まい I7-11

【NEW OPEN】

新しいリアルサイズのモデルハウスが、セントラルシティこころに誕生!

セントラルシティこころに、新しいモデルハウスがオープンしました。

開放感のあるLDKで家族がゆったりくつろげることに加え、ヌックやカウンターなど、少しこもって過ごせる居場所も備えた住まいです。家族とのつながりと、自分の時間の心地よさを、ぜひ現地でお確かめください。

見学希望日を選んでください

2025.

8

月

見学時間を選んでください

09:00〜12:00
15:00〜16:00
16:00〜17:00
予約へ進む

物件の特長

23.5帖の大空間と天井高2.6m。家族の時間がのびのび広がるLDK

House image

圧倒的な広さと高さが生む開放感は、この家の主役。家族が集まってもなお余りあるスペースが、映画を観るひとときも、何気ない食事の時間も、特別なものに変えてくれます。どこにいても窮屈さを感じないゆとりが、自然と「早く家に帰りたくなる」穏やかな空気をつくります

リビング横の小さな隠れ家。包み込まれるような安心感の「ヌック」

House image

リビングの一角に設けた、こもり感のある心地よいおこもりスペース。
家族の楽しげな気配を遠くに感じながら、自分だけの世界に浸れる距離感が魅力です。
「広さ」の中に「囲まれた安心感」があることで、暮らしのなかに特別な安らぎが生まれます。

宿題も仕事も、食卓のすぐそばで。多目的に使えるダイニングカウンター

House image

キッチンからも目が届くダイニング横のカウンターは、家族みんなの共有デスク。
お子さまの宿題はもちろん、家事の合間の調べものや在宅ワークにも最適。
専用の場所がリビングにあることで、個室にこもらず、作業できる機能的な空間です。

電話で
問い合わせる
見学予約する

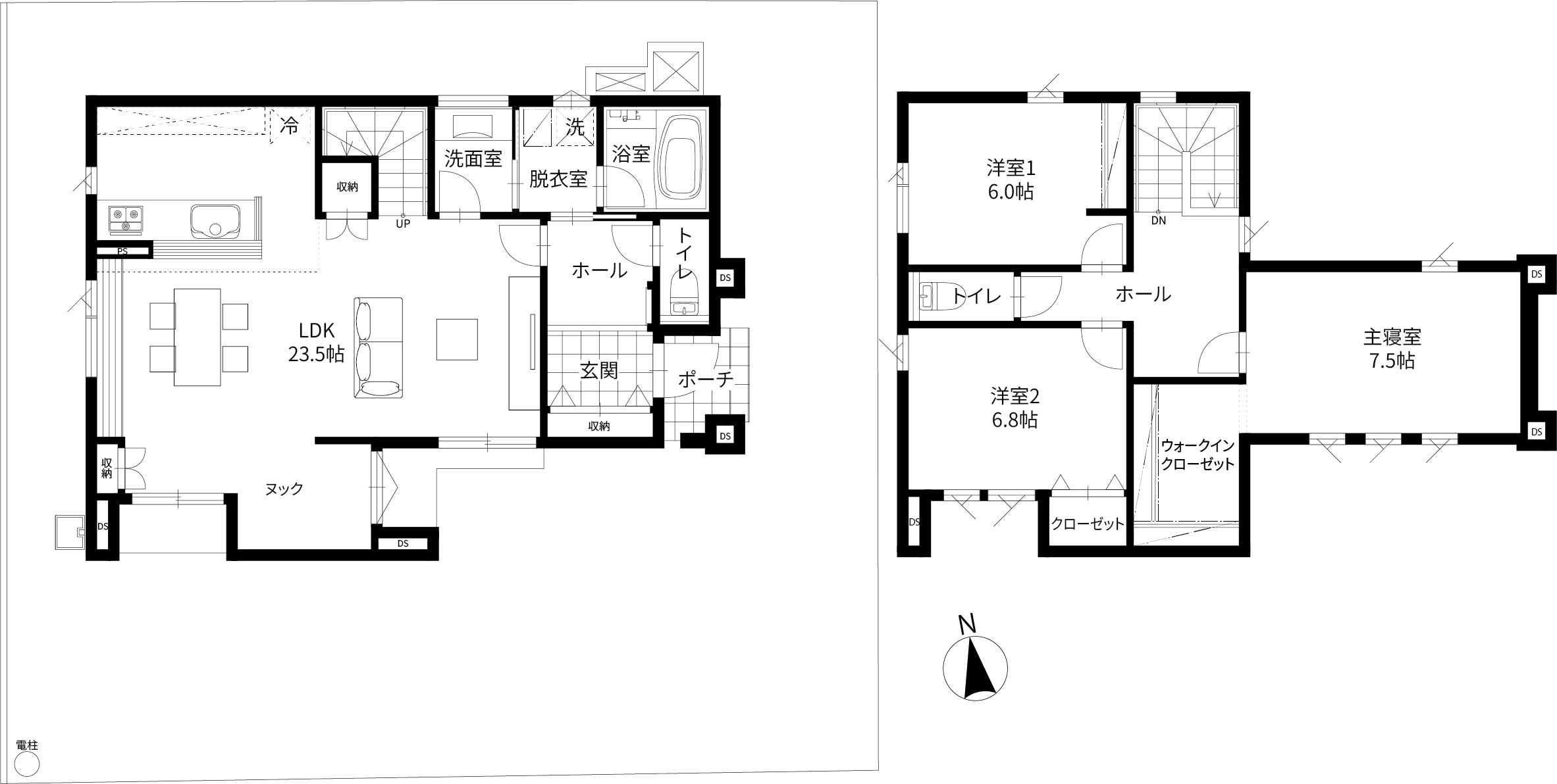
間取り

延床面積 / 111.91㎡(33.60坪) 1階 / 60.19㎡(18.20坪)2階 / 50.90㎡(15.39坪)

ギャラリー

/>

/>

/>

物件情報

場所

広島県広島市佐伯区石内北3丁目

定休日

水曜日、木曜日

電話

0120-122-435

営業時間

10:00〜17:00

電話で
問い合わせる
見学予約する

モデルハウスMAP

地図アプリで見る
  • 会社情報
  • イベント2件
  • モデルハウス9件
  • 土地・建売5件
  • 公式サイト

閲覧履歴

arrow
  • 価格は物件の代金総額を表示しており、消費税が課税される場合は税込み価格です。 (1000円未満は切り上げ。)
  • 写真に写っている、またはパース(絵)や間取り図に描かれている家具や車などは、特にコメントがない場合、販売価格に含まれません。
  • 敷地権利が定期借地権のものは価格に権利金を含みます。
  • 建築条件付き土地価格には、建物価格は含まれません。
  • 物件情報は、原則として情報提供日の2日前に最終確認した情報です。
  • 完成予想図はいずれも外構、植栽、外観等実際のものとは多少異なることがあります。
  • 建築条件付き土地とは、その土地に建築する建物の建築請負契約が一定期間内に成立することを条件として売買される土地を指します。建築請負契約の成立に向けて、土地購入者と施工会社との間で建物の設計プランを協議するため、購入者が希望する建物の設計に関する十分な交渉期間が設定されます。この交渉期間内に希望を満たすプランが実現できるかどうかを確認し、契約の可否を判断します。なお、この期間はおおむね3ヶ月程度とされています。もし購入者が納得のいくプランを得られず、建築請負契約が成立しなかった場合には、土地売買契約は白紙となり、土地代金や手付金など、契約にかかった費用は名目に関係なく全額返金されます。
  • 建築条件土地の情報内に掲載されている、建物プラン例は、土地購入者の設計プランの参考の一例であって、プランの採用可否は任意です。
logo
instagram

工務店・ハウスメーカーを探す

- 施工対応エリアから探す

広島市 | 中区 | 東区 | 南区 | 西区 | 佐伯区 | 安佐南区 | 安佐北区 | 安芸郡 | 府中町 | 海田町 | 熊野町 | 坂町 | 廿日市市 | 大竹市 | 東広島市 | 呉市 | 江田島市 | 竹原市 | 安芸高田市 | 三次市 | 庄原市 | 安芸太田町 | 北広島町 | 福山市 | 三原市 | 尾道市 | 府中市 | 神石高原町 | 世羅町 | 豊田郡 | 岩国市

- 取扱住宅から探す

注文住宅 | 規格住宅 | 建売住宅

施工事例を見る

- カテゴリーから探す

新築 | リフォーム | リノベーション

住宅イベントへ行く

- カテゴリーから探す

完成見学会 | モデルハウス見学会 | イベント | セミナー | オンラインイベント | 相談会 | リフォーム・リノベーション

モデルハウスへ行く

- エリアから探す

広島市 | 中区 | 東区 | 南区 | 西区 | 佐伯区 | 安佐南区 | 安佐北区 | 安芸郡 | 府中町 | 海田町 | 熊野町 | 坂町 | 廿日市市 | 大竹市 | 東広島市 | 呉市 | 江田島市 | 竹原市 | 安芸高田市 | 三次市 | 庄原市 | 安芸太田町 | 北広島町 | 福山市 | 三原市 | 尾道市 | 府中市 | 神石高原町 | 世羅町 | 豊田郡 | 岩国市

- 属性から探す

販売中 | 販売予定 | 常設展示場 | 常時見学可 | 宿泊体験可

土地を探す

- 所在地から探す

広島市 | 中区 | 東区 | 南区 | 西区 | 佐伯区 | 安佐南区 | 安佐北区 | 安芸郡 | 府中町 | 海田町 | 熊野町 | 坂町 | 廿日市市 | 大竹市 | 東広島市 | 呉市 | 江田島市 | 竹原市 | 安芸高田市 | 三次市 | 庄原市 | 安芸太田町 | 北広島町 | 福山市 | 三原市 | 尾道市 | 府中市 | 神石高原町 | 世羅町 | 豊田郡 | 岩国市

建売住宅を探す

- 所在地から探す

広島市 | 中区 | 東区 | 南区 | 西区 | 佐伯区 | 安佐南区 | 安佐北区 | 安芸郡 | 府中町 | 海田町 | 熊野町 | 坂町 | 廿日市市 | 大竹市 | 東広島市 | 呉市 | 江田島市 | 竹原市 | 安芸高田市 | 三次市 | 庄原市 | 安芸太田町 | 北広島町 | 福山市 | 三原市 | 尾道市 | 府中市 | 神石高原町 | 世羅町 | 豊田郡 | 岩国市

工務店・ハウスメーカーを探す >

- 施工対応エリアから探す

広島市 | 中区 | 東区 | 南区 | 西区 | 佐伯区 | 安佐南区 | 安佐北区 | 安芸郡 | 府中町 | 海田町 | 熊野町 | 坂町 | 廿日市市 | 大竹市 | 東広島市 | 呉市 | 江田島市 | 竹原市 | 安芸高田市 | 三次市 | 庄原市 | 安芸太田町 | 北広島町 | 福山市 | 三原市 | 尾道市 | 府中市 | 神石高原町 | 世羅町 | 豊田郡 | 岩国市

- 取扱住宅から探す

注文住宅 | 規格住宅 | 建売住宅

施工事例を見る >

- カテゴリーから探す

新築 | リフォーム | リノベーション

住宅イベントへ行く >

- カテゴリーから探す

完成見学会 | モデルハウス見学会 | イベント | セミナー | オンラインイベント | 相談会 | リフォーム・リノベーション

モデルハウスへ行く >

- エリアから探す

広島市 | 中区 | 東区 | 南区 | 西区 | 佐伯区 | 安佐南区 | 安佐北区 | 安芸郡 | 府中町 | 海田町 | 熊野町 | 坂町 | 廿日市市 | 大竹市 | 東広島市 | 呉市 | 江田島市 | 竹原市 | 安芸高田市 | 三次市 | 庄原市 | 安芸太田町 | 北広島町 | 福山市 | 三原市 | 尾道市 | 府中市 | 神石高原町 | 世羅町 | 豊田郡 | 岩国市

- 属性から探す

販売中 | 販売予定 | 常設展示場 | 常時見学可 | 宿泊体験可

土地を探す >

- 所在地から探す

広島市 | 中区 | 東区 | 南区 | 西区 | 佐伯区 | 安佐南区 | 安佐北区 | 安芸郡 | 府中町 | 海田町 | 熊野町 | 坂町 | 廿日市市 | 大竹市 | 東広島市 | 呉市 | 江田島市 | 竹原市 | 安芸高田市 | 三次市 | 庄原市 | 安芸太田町 | 北広島町 | 福山市 | 三原市 | 尾道市 | 府中市 | 神石高原町 | 世羅町 | 豊田郡 | 岩国市

建売住宅を探す >

- 所在地から探す

広島市 | 中区 | 東区 | 南区 | 西区 | 佐伯区 | 安佐南区 | 安佐北区 | 安芸郡 | 府中町 | 海田町 | 熊野町 | 坂町 | 廿日市市 | 大竹市 | 東広島市 | 呉市 | 江田島市 | 竹原市 | 安芸高田市 | 三次市 | 庄原市 | 安芸太田町 | 北広島町 | 福山市 | 三原市 | 尾道市 | 府中市 | 神石高原町 | 世羅町 | 豊田郡 | 岩国市

一括資料請求

一括資料請求

登録会社一覧

サイトマップ

利用規約

プライバシーポリシー

お問い合わせ

運営会社

ご掲載を希望される方へ

岩手県版

guideMap_i

宮城県版

guideMap_i

山形県版

guideMap_i

福島県版

guideMap_i

茨城県版

guideMap_i

富山県版

guideMap_i

石川県版

guideMap_i

関西版

guideMap_i

愛媛県版

guideMap_i

鹿児島県版

guideMap_i

広島県の工務店 ハウスメーカー 情報サイト © IETATTA

サイトマップ

利用規約

プライバシーポリシー

お問合せ

運営会社

ご掲載を希望される方へ

登録会社一覧

ひろしまの家 > モデルハウス一覧 > 株式会社トータテハウジング > “集まる”と“こもれる”が両立する|広々LDKで家族がくつろぐ住まい I7-11