山根木材ホーム株式会社

【分譲住宅】グランアーバン東原3丁目 2号棟

販売中
分譲地
スーパー徒歩10分以内
中学校徒歩15分以内
1/8

都市の利便性と快適な住環境を兼ね備えた邸宅。
AL「中筋」駅まで徒歩7分という好立地にあり、市内中心部へのアクセス、周辺にはスーパーや公共施設も充実しています。山根木材独自の「Kajitan(カジタン)」による家事動線の工夫や豊富な収納が、子育て世帯の効率的な暮らしを支えます。

物件情報

情報更新日

2026/05/28

販売価格

5350万円

間取り

3LDK+WIC

土地面積

104.00 m² [31.46坪]

建物面積

91.08 m² [27.55坪]

構造

2階建て

住所

広島県広島市安佐南区東原3丁目

土地の権利形態

所有権

完成時期

2025年11月

間取り

3LDK+WIC
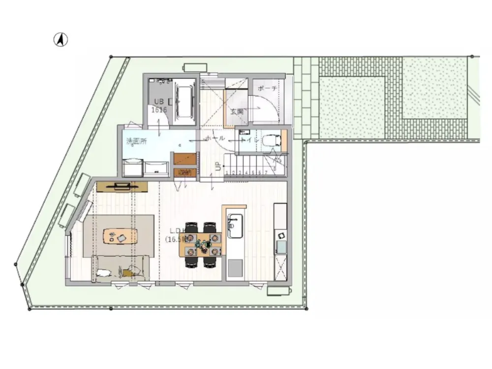
1階間取り図
1階間取り図

2階間取り図
2階間取り図

周辺環境

  • アストラムライン
    アストラムライン
    アストラムライン 中筋駅まで550m(徒歩7分)
  • バスターミナル
    バスターミナル
    中筋バスターミナル 490m(徒歩7分)
  • スーパー
    スーパー
    藤三 中筋店 570m(徒歩8分)
  • スーパー
    スーパー
    フレスタ 東原店 640m(徒歩8分)
  • ドラッグストア
    ドラッグストア
    ウォンツ 東原店 1050m(徒歩14分)
  • 幼稚園
    幼稚園
    広島市立中筋幼稚園 730m(徒歩10分)
  • 小学校
    小学校
    広島市立東野小学校 930m(徒歩12分)
  • 区役所
    区役所
    安佐南区役所870m(徒歩11分)

所在地MAP

物件情報

所在地

広島県広島市安佐南区東原3丁目

交通

アストラムライン中筋駅 550m 徒歩7分

土地面積

104.00 m² [31.46坪]

建物面積

91.08 m² [27.55坪]

建ぺい率・容積率

200%、60%%

間取り

3LDK+WIC

建物構造

91.08

駐車場

2台

道路付け

東側アスファルト舗装6m

私道負担・道路

私道負担なし

負担金

電気

中国電力

上水道

公共上水道

下水道

公共下水道

ガス

都市ガス

都市計画

開発面積

用途地域

第一種住居地域

地目

宅地

土地の権利

所有権

借地権の種類・期間

取引条件の有効期限

建築確認番号

第ERI-25015355号

制限事項

特記事項

物件仕様

・長期優良認定住宅、耐震等級3、ZEH仕様(BELS認定住宅)
・制震ダンパー搭載
・都市ガス引込済
・ガス衣類乾燥機「乾太くん」デラックス 標準装備
・ガラストップSiガスコンロ「Lisse」(ココットプレート付)
・深型食洗器
・ウルトラファインバブル給湯器
・太陽光発電5.096Kw搭載
・屋根:粘土瓦を使用し、メンテナンスフリー
・樹脂サッシ LOW-E入り複層ガラス+アルゴンガス(全窓)
・外壁の下地には、遮熱シート施工
・主要な構造材は乾燥材使用
・べた基礎
・地盤保証10年
・建物瑕疵保証10年

販売価格

5350万円

販売区画・戸数

1戸

総区画・戸数

1戸

造成完了時期

完成時期

2025年11月

引き渡し時期

要相談

売主

山根木材ホーム株式会社

取引形態

売主

学区情報

広島市立東野小学校
広島市立東野中学校

備考

情報更新日

2026/05/28

次回更新予定日

2026/06/11

販売会社情報

社名

山根木材ホーム株式会社

ブランド名

山根木材ホーム株式会社

所在地

広島県広島市南区出島1丁目21番15号広島県広島市南区出島1丁目21番15号広島県広島市南区出島1丁目21番15号

営業時間

10:00~18:00

定休日

火・水曜日

電話番号

082-254-3234

FAX

082-553-0242

建築許可番号

国土交通大臣許可(特-6)第25365号

宅建業免許番号

国土交通大臣許可(3)第8595号

所属団体名及び公正取引協議会加盟事業者

(公社)広島県宅地建物取引業協会(広島宅建協会)

閲覧履歴

arrow