山根木材ホーム株式会社

【分譲住宅】ウッディタウン道上 16号棟

販売中
分譲地
日当たり良好or南面道路
小学校徒歩10分以内
閑静な住宅街
1/8

ZEH仕様による優れた断熱性と省エネ性能を備えており、南向きの角地という光豊かな立地。
建物はグレーモダンな外観が特徴で、家事効率を追求した動線や中庭を囲む開放的なLDKなど、
家族が快適に過ごせる工夫が凝らされている。

物件情報

情報更新日

2026年04月08日 11:49

販売価格

3495万円

間取り

3LDK+WIC

土地面積

175.82 m² [53.19坪]

建物面積

107.42 m² [32.49坪]

構造

2階建て

住所

広島県福山市神辺町道上

土地の権利形態

所有権

完成時期

間取り

3LDK+WIC
1階間取り図
1階間取り図

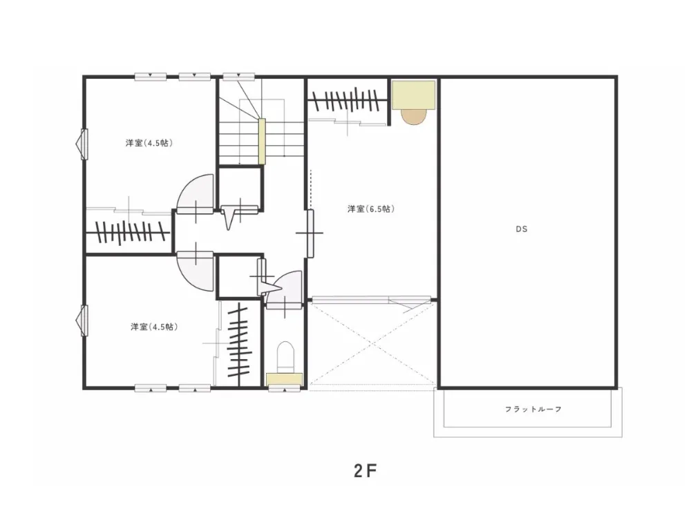
2階間取り図
2階間取り図

周辺環境

  • 幼稚園
    幼稚園
    福山市立道上幼稚園 徒歩7分
  • 小学校
    小学校
    福山市立道上小学校 徒歩9分
  • 中学校
    中学校
    福山市立神辺中学校 自転車15分
  • スーパー
    スーパー
    ハート(なかやま牧場)自動車5分
  • ドラッグストア
    ドラッグストア
    ひまわり 道上店 自動車5分
  • コンビニ
    コンビニ
    ファミリーマート道上店 徒歩7分
  • 郵便局
    郵便局
    道上郵便局 自動車5分
  • JA福山市
    JA福山市
    JA福山市 道上支店 徒歩7分

所在地MAP

物件情報

所在地

広島県福山市神辺町道上

交通

JR福塩線「道上駅」徒歩 12分

土地面積

175.82 m² [53.19坪]

建物面積

107.42 m² [32.49坪]

建ぺい率・容積率

200%、70%

間取り

3LDK+WIC

建物構造

木造

駐車場

道路付け

アスファルト舗装南側約12m 西側6.0m

私道負担・道路

私道負担なし

負担金

電気

中国電力

上水道

公共上水道

下水道

個別浄化槽

ガス

なし

都市計画

開発面積

用途地域

市街化調整区域

地目

宅地

土地の権利

所有権

借地権の種類・期間

取引条件の有効期限

建築確認番号

第R04認福広建セ00512号

制限事項

特記事項

販売価格

3495万円

販売区画・戸数

1戸

総区画・戸数

1戸

造成完了時期

完成時期

引き渡し時期

売主

山根木材ホーム株式会社

取引形態

売主

学区情報

福山市立道上小学校
福山市立神辺中学校

備考

情報更新日

2026/04/08

次回更新予定日

2026/04/22

販売会社情報

社名

山根木材ホーム株式会社

ブランド名

所在地

広島県広島市南区出島南区出島1丁目21番15号 納得すまいる館3階 納得すまいる館3階

営業時間

9:00~18:00

定休日

水曜日

電話番号

082-254-3234

FAX

082-553-0242

建築許可番号

国土交通大臣(3)第8595号

宅建業免許番号

国土交通大臣許可(3)第8595号

所属団体名及び公正取引協議会加盟事業者

閲覧履歴

arrow