株式会社トータテハウジング
【先行販売】セントラルシティこころI5-2分譲
物件情報
情報更新日
2026年04月20日 12:00
販売価格
4480万円
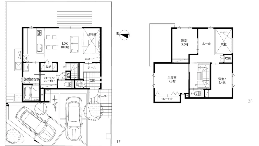
間取り
3LDK+SCL+WIC+ウッドデッキ
土地面積
167.84 m² [50.77坪]
建物面積
105.35 m² [31.87坪]
構造
2階建て
住所
広島県広島市佐伯区石内北石内北3丁目
土地の権利形態
完成時期
2026年9月予定
間取り
3LDK+SCL+WIC+ウッドデッキ
ギャラリー
リビングのアクセントにエコカラットを採用。日々の快適さと上質な雰囲気を両立
吹抜けから光が差し込み、心地よい明るさと開放感のあるリビング
周辺環境
物件情報
所在地
広島県広島市佐伯区石内北石内北3丁目
交通
石内北小学校前バス停 徒歩3分(広電バス) 260m
土地面積
167.84 m² [50.77坪]
建物面積
105.35 m² [31.87坪]
建ぺい率・容積率
100%、50%
間取り
3LDK+SCL+WIC+ウッドデッキ
建物構造
木造2階建て
駐車場
2台
道路付け
西側
私道負担・道路
6.0m
負担金
電気
中国電力
上水道
公共
下水道
公共
ガス
都市ガス
都市計画
開発面積
用途地域
第一種低層住居専用地域
地目
宅地
土地の権利
借地権の種類・期間
取引条件の有効期限
建築確認番号
第HP16-411 8014号
制限事項
特記事項
※建物面積は建築確認表示の面積です。
※本物件は建築中のため、現地のご案内については状況により制限がある場合がございます。予めご了承ください。
販売価格
4480万円
販売区画・戸数
1戸
総区画・戸数
1戸
造成完了時期
完成時期
2026年9月予定
引き渡し時期
相談
売主
(株)トータテハウジング 広島市中区千田町2丁目5番44号 国土交通大臣(特-5)第20228号 広島県知事(12)第4978号 西広島開発(株) 広島市中区国泰寺町2丁目4番7号 広島県知事(14)第3269号
取引形態
売主
学区情報
・広島市立石内北小学校 徒歩4分
・広島市立大塚中学校 徒歩20分
・こころはるか保育園まで徒歩15分
・ほうりんこころ幼稚園まで徒歩16分
備考
外構付き、長期優良住宅、オール樹脂サッシ、全熱交換型換気、浴室乾燥暖房機、オール電化、スマートキー、食器洗浄機乾燥機、TVモニター付きインターホン、吹抜け、オープンキッチン、大容量カップボード、エコカラット、ウッドデッキ
情報更新日
2026/04/20
次回更新予定日
2026/05/04
販売会社情報
社名
株式会社トータテハウジング
ブランド名
所在地
広島県広島市中区千田町2丁目5-44
営業時間
10:00~18:00
定休日
水曜・木曜
電話番号
082-247-3133
FAX
082-504-7211
建築許可番号
建設業の許可 / 国土交通大臣(特-5)第20228号 一級建築士事務所の登録 / 広島県知事21(1)0276号 住宅性能保証制度 / 第10003013号
宅建業免許番号
広島県知事免許(12)第4978号
所属団体名及び公正取引協議会加盟事業者
(一社)日本ツーバイフォー建築協会
(一社)広島県住宅産業協会
(一社)全国住宅産業協会
(公社)広島県宅地建物取引業協会
閲覧履歴